Starting Your Project
Getting to know you and your space.
A signed contract and paid deposit are required to book design services. From there clients will be sent an intake form to fill out in order to collect all the relevant information about the project. This includes the details and dimensions of your space, a sketch of your floor plan, pictures of your space, a wish list, budget and a link to inspiration images. Once this is collected, a consultation will be scheduled to discuss the project in detail and create a plan for the design.


Client intake form
Example sketch of client floor plan
Create 3d Model
Designing a vision for your space.
Using CAD software, I determine the best layout for furnishings and consider all your needs for the space.
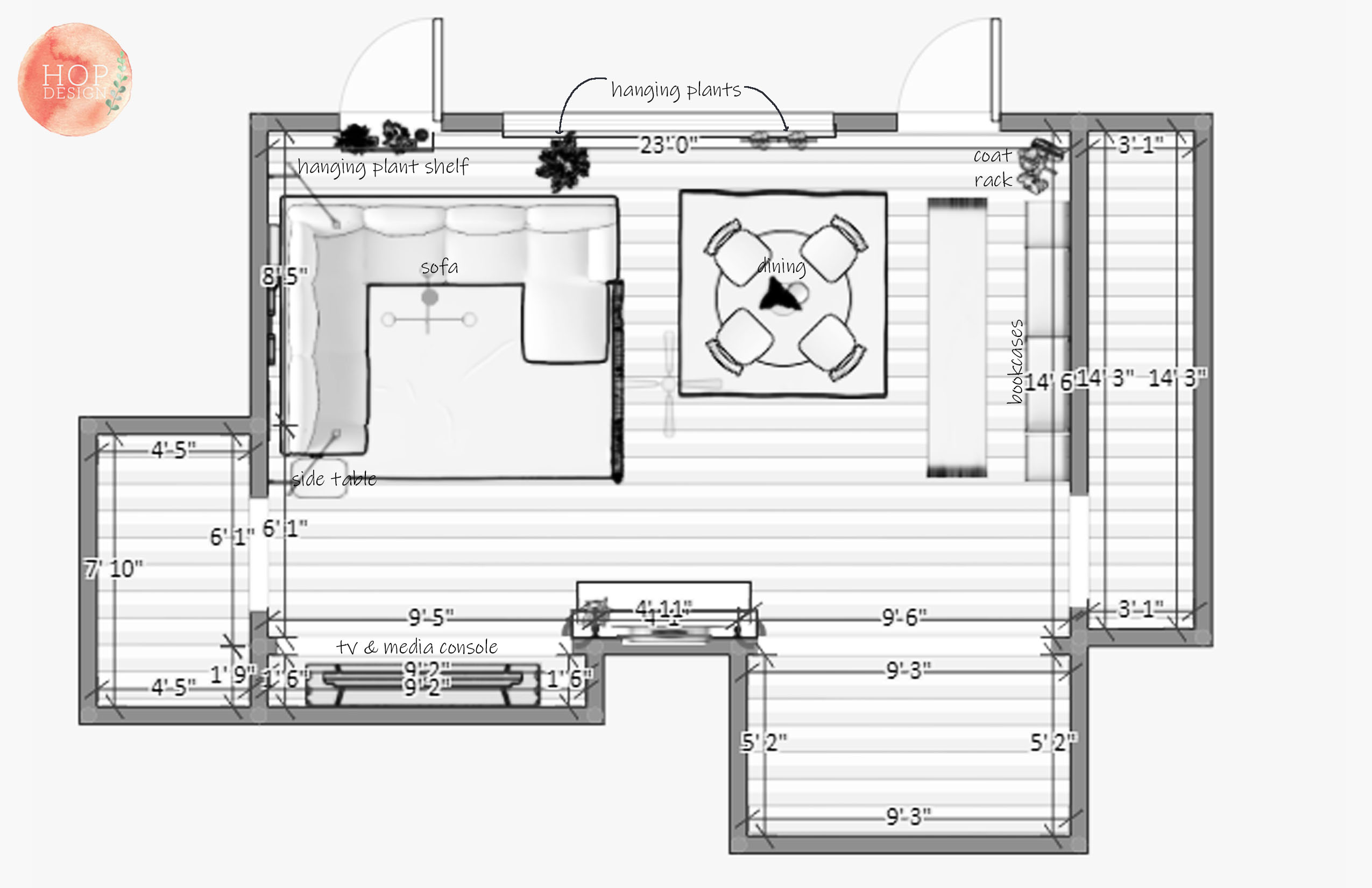
Scale is a guiding principle in Interior Design, so this stage is crucial in getting the scale exactly right for your space. It Includes creating a floor plan, a layout of furnishings and placing decorative accessories in a virtual space.
Examples of different types of layouts from previous client projects
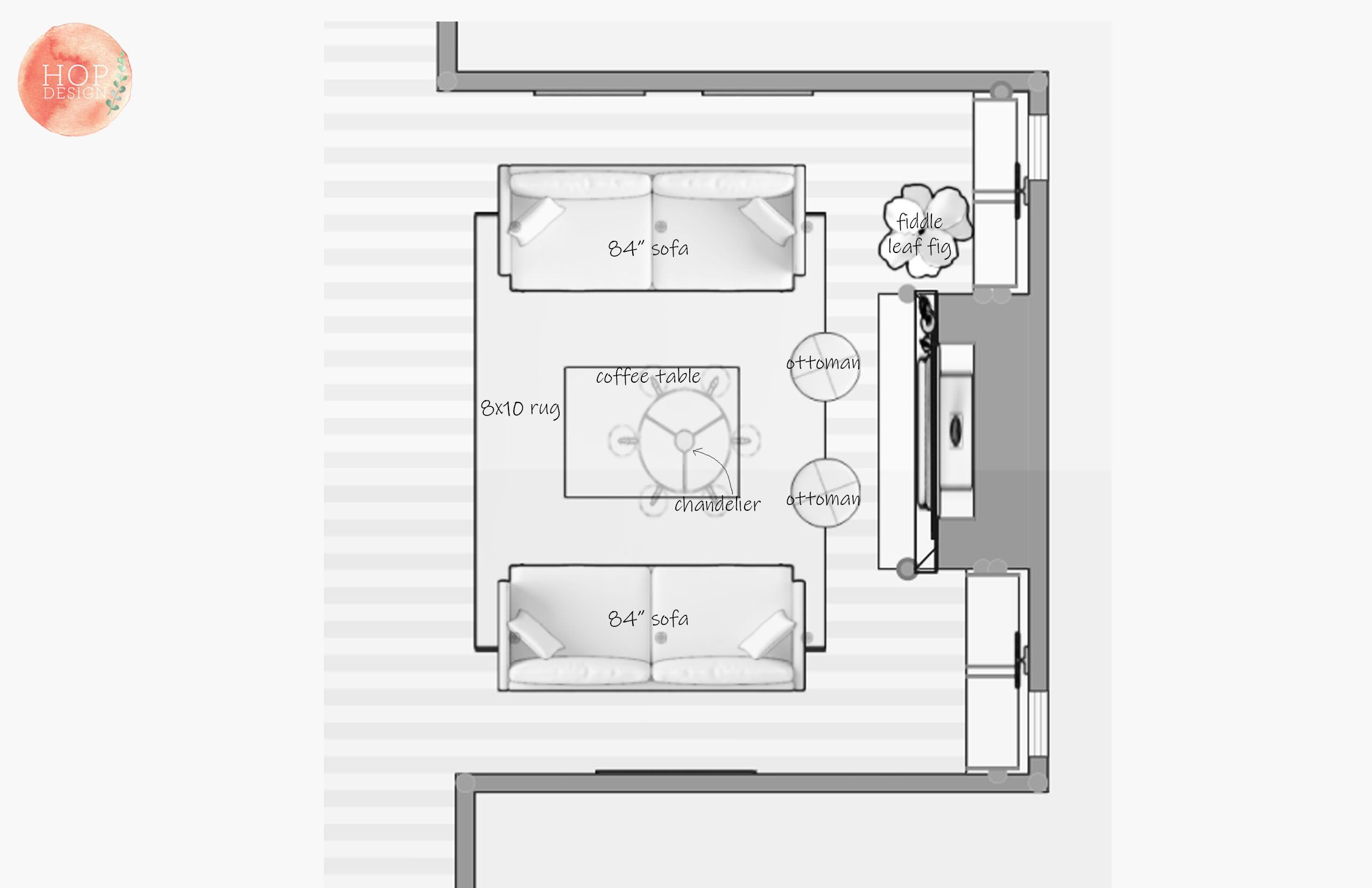
Examples of 3D renderings of previous client projects
Layout Presentation
Receive a layout that meets your needs.
After creating the CAD model of your space, it’s time to communicate that design to the client. Using a PowerPoint slideshow, I use the floor plan images and 3D renderings to visually communicate my suggestions to best meet your design needs.
This is done through either in person meetings, zoom meetings or prerecorded videos explaining what I designed and why. From here, the client will provide feedback on the layout and we will either move on to the product sourcing stage or go back to the model for revisions.

One-to-one Designer Communication
Product Sourcing
Collecting the pieces.
In this stage I begin the hunt for the specific products for purchase that fulfill clients needs: budget, size, design aesthetic, availability and function. This is a little like solving a puzzle. The 3D model gives us the vision for the space while selecting the product is like finding the exact puzzle pieces to put the vision together. It’s just as challenging as a puzzle and as equally fun. It takes time to find the right piece but when we do it’s so satisfying!
Concept Presentation
Review your curated selections.
After selecting the right pieces for your space, I will communicate the selections to clients through mood boards to show how the pieces fit together. Clients can approve or reject selections and provide feedback in this stage and I will continue to source until we get it just right.
Once all the pieces have been selected and the design is finalized, the client places the order.
Examples of previous client concepts and product selections
Installation
Enjoy your dream space.
For in-person design local to Atlanta, installation can be provided by HOP design. For E-design projects, installation is done by the client. I will provide instructions on how to set up your space using the layouts, 3D renderings and mood boards as a guide. Additional guidance can be provided as needed for your space to look exactly right. Should your design also require professional installation by a general contractor, additional guidance between designer and GC may be provided as needed.
Examples of Previous Client Projects
Greenhedge Dr
Scott Blvd
Bank Street
Scott Blvd
Princess Dream Room
Miami Townhouse














































