
Let’s create a peaceful place together.
Declutter & Design Services
Everyone deserves to love the place they call home but often times there are barriers that keep us from finding peace in our space. HOP design is ready to come along side you to help you overcome those barriers. Check out our services below.
Design Services

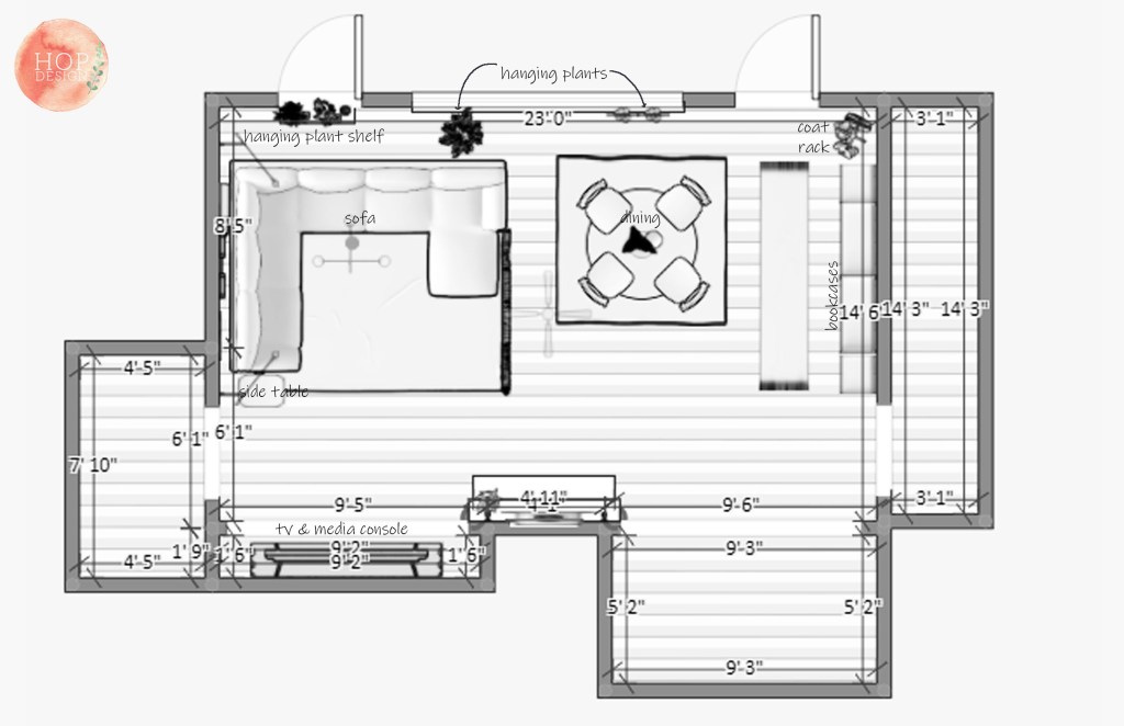
Floor Planning
Perfect for those who already have furniture and accessories but are unsure of how to arrange it all. We can create a layout and digital rendering of your space so you can set up your home with confidence.
Starts at $375 per room.

Virtual Design
Perfect for those who need help designing a cohesive space. We can assist with sourcing products (furniture, finishes, decorative accessories, etc.) and create renderings so you can see what your design will look like before making major changes.
Starts at $500 per room.

In Person Design
Perfect for those living in the Atlanta, GA area and looking for full service design. We can work with you and your builder on your remodel or new build and provide renderings, floor plans and mood boards.
Starts at $750 per room.
Declutter Services
“The space in which we live should be for the person we are becoming now, not for the person we were in the past.” – Marie Kondo
Perfect for anyone, but especially for those experiencing transition or life changes. The decluttering and organizing process can be weighty, HOP design can coach you through it. Book a 60 minute decluttering coaching session using the link below.
Starts at $75 per session.


“It’s a weight off my shoulders to see this possibility, the designs are so good!”
– Matt, In Person Design Client